Vivez l’équilibre parfait entre ville et sérénité.
Située aux portes de Bordeaux, la commune de Le Taillan-Médoc bénéficie d’un emplacement privilégié au cœur de la métropole bordelaise. Entre dynamisme urbain et cadre résidentiel recherché, elle offre un accès rapide aux pôles d’emplois, aux grands axes de circulation et aux communes voisines du Médoc. Sa proximité immédiate avec Bordeaux permet de concilier vie professionnelle active et qualité de vie au quotidien.
Le Taillan-Médoc séduit par son équilibre entre ville et nature. La commune dispose de nombreux services de proximité : commerces, écoles, équipements sportifs et vie associative riche. Très appréciée pour son ambiance conviviale et résidentielle, elle offre un cadre de vie agréable, ponctué d’espaces verts et de cheminements doux, tout en restant pleinement intégrée à l’aire urbaine bordelaise.
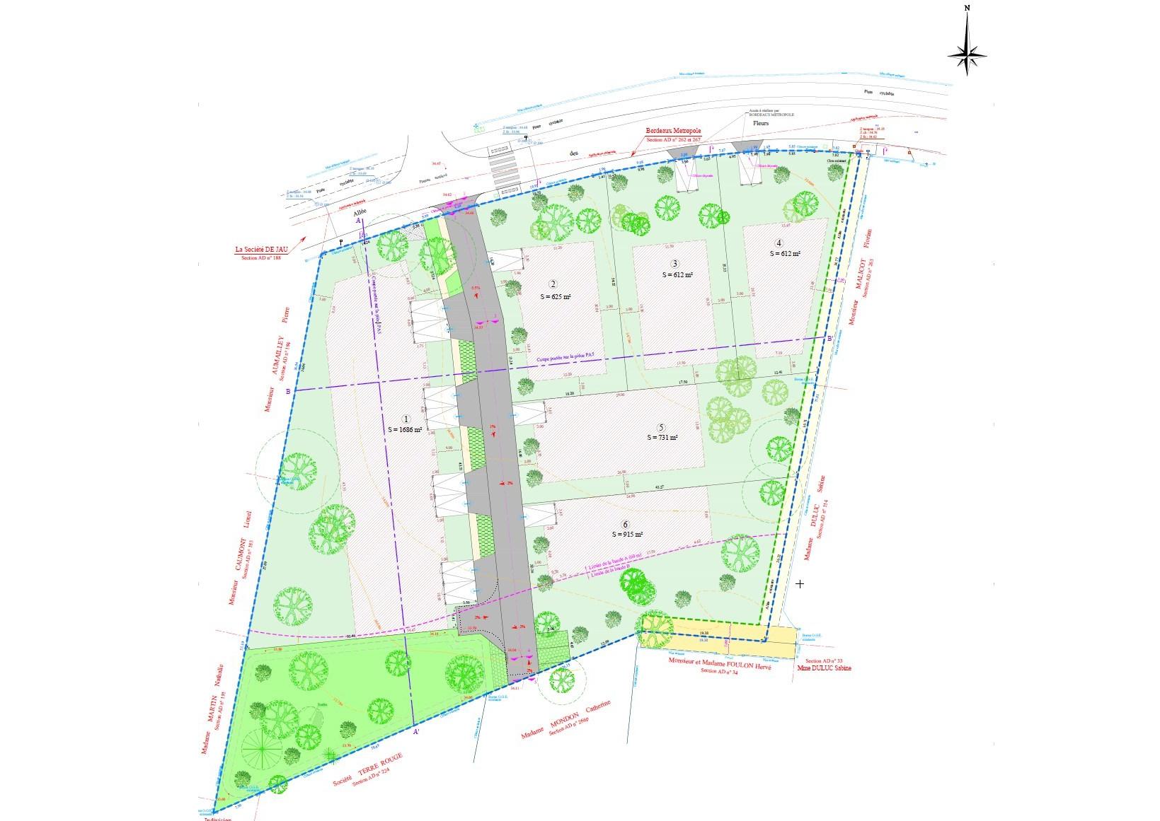
Le lotissement L’Allée des Fleurs, situé Allée des Fleurs, propose un projet résidentiel à taille humaine, pensé pour s’intégrer harmonieusement dans son environnement existant. L’opération privilégie un cadre de vie paisible, au cœur d’un quartier calme et recherché de la commune.
Le projet bénéficie d’un permis d’aménager PA 033 519 Z0002, accordé le 02 août 2023, consultable en mairie de Le Taillan-Médoc. Cette opération offre un environnement propice à la réalisation d’un projet de construction durable et personnalisé, dans un secteur alliant confort résidentiel et proximité des services.
À L’Allée des Fleurs, imaginez votre future maison dans un environnement résidentiel recherché, à deux pas de Bordeaux et au cœur d’une commune où il fait bon vivre.
Située aux portes de Bordeaux, la commune de Le Taillan-Médoc bénéficie d’un emplacement privilégié au cœur de la métropole bordelaise. Entre dynamisme urbain et cadre résidentiel recherché, elle offre un accès rapide aux pôles d’emplois, aux grands axes de circulation et aux communes voisines du Médoc. Sa proximité immédiate avec Bordeaux permet de concilier vie professionnelle active et qualité de vie au quotidien.
Le Taillan-Médoc séduit par son équilibre entre ville et nature. La commune dispose de nombreux services de proximité : commerces, écoles, équipements sportifs et vie associative riche. Très appréciée pour son ambiance conviviale et résidentielle, elle offre un cadre de vie agréable, ponctué d’espaces verts et de cheminements doux, tout en restant pleinement intégrée à l’aire urbaine bordelaise.
Le lotissement L’Allée des Fleurs, situé Allée des Fleurs, propose un projet résidentiel à taille humaine, pensé pour s’intégrer harmonieusement dans son environnement existant. L’opération privilégie un cadre de vie paisible, au cœur d’un quartier calme et recherché de la commune.
Le projet bénéficie d’un permis d’aménager PA 033 519 Z0002, accordé le 02 août 2023, consultable en mairie de Le Taillan-Médoc. Cette opération offre un environnement propice à la réalisation d’un projet de construction durable et personnalisé, dans un secteur alliant confort résidentiel et proximité des services.
À L’Allée des Fleurs, imaginez votre future maison dans un environnement résidentiel recherché, à deux pas de Bordeaux et au cœur d’une commune où il fait bon vivre.


