Vivez l’esprit du Bassin d’Arcachon au quotidien.
Située sur le Bassin d’Arcachon, la commune d’Audenge bénéficie d’un emplacement privilégié entre océan, forêt et grands pôles urbains. Facilement accessible, elle permet de rejoindre rapidement les communes du Bassin, tout en conservant une vraie identité locale. Audenge séduit par son cadre naturel remarquable et son équilibre entre dynamisme du littoral et douceur de vivre.
Audenge offre un cadre de vie recherché, apprécié pour sa proximité avec le Bassin d’Arcachon, son port, ses sentiers côtiers et ses espaces naturels préservés. La commune dispose de l’ensemble des services du quotidien : commerces, établissements scolaires, équipements sportifs et vie associative active. Elle attire aussi bien les familles que les actifs en quête d’un environnement apaisé, sans renoncer aux atouts d’un territoire vivant et attractif.
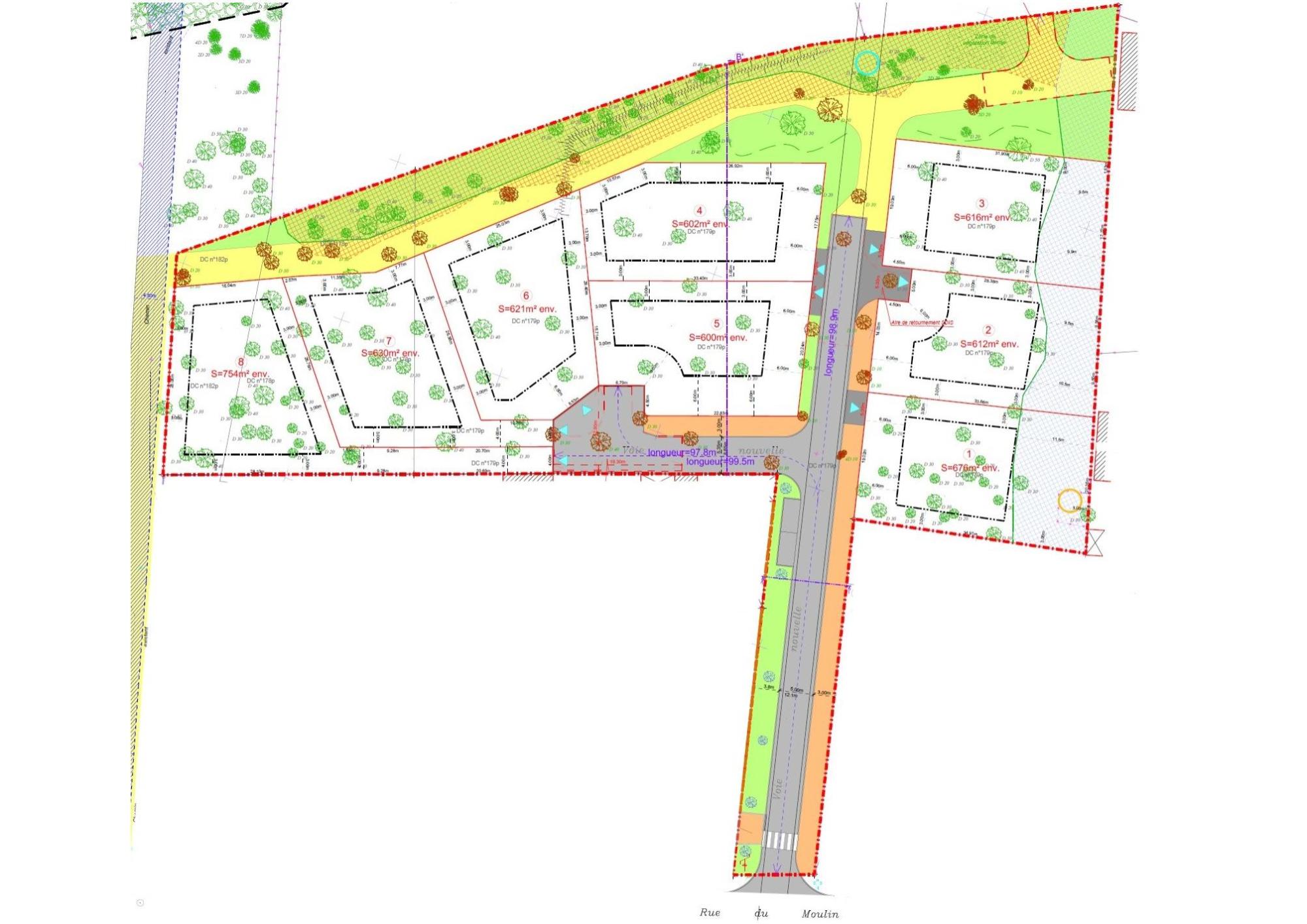
Le lotissement Le Castéra, situé environ au 28 rue du Moulin, propose 8 terrains à bâtir viabilisés, au sein d’un environnement résidentiel calme et harmonieux. Pensée à taille humaine, l’opération s’intègre naturellement dans le tissu existant et privilégie la qualité du cadre de vie.
Le projet bénéficie d’un permis d’aménager PA 033 019 23 K0007 T01, accordé le 12 janvier 2026, consultable en mairie d’Audenge. Cette opération offre les conditions idéales pour concevoir un projet de construction durable et personnalisé, dans une commune emblématique du Bassin d’Arcachon.
Le projet bénéficie d’un permis d’aménager PA 033 019 23 K0007 T01, accordé le 12 janvier 2026, consultable en mairie d’Audenge. Cette opération offre les conditions idéales pour concevoir un projet de construction durable et personnalisé, dans une commune emblématique du Bassin d’Arcachon.
Au Castéra, imaginez votre future maison dans un environnement naturel et résidentiel, où confort, sérénité et qualité de vie se conjuguent pleinement.
Cliquez sur le picto pour télécharger le plan de vente
| Lot | Surf. m² | Sdp m² | ES m² | Dépôt PC | Prix € | État | ||
| 1 | 676 m² | 350 m² | 378 m² | 225 000 € | Libre | |||
| 2 | 612 m² | 350 m² | 378 m² | 223 000 € | Libre | |||
| 3 | 616 m² | 350 m² | 378 m² | 228 000 € | Libre | |||
| 4 | 602 m² | 350 m² | 378 m² | 228 000 € | Libre | |||
| 5 | 600 m² | 350 m² | 378 m² | 220 000 € | Libre | |||
| 6 | 621 m² | 350 m² | 378 m² | 233 000 € | Libre | |||
| 7 | 630 m² | 350 m² | 378 m² | 233 000 € | Libre |
- Frais d’enregistrement : 125 €
- ASL 700 € ; provision dégradation de voire 700 €
- Terrains viabilisés : Eau potable, électricité, téléphone, tout à l’égout
- Permis d’aménager PA 033 019 23 K0007 T01, accordé le 12 janvier 2026, consultable en mairie d’Audenge
- Début des travaux juin 2026
- Réservation possible






